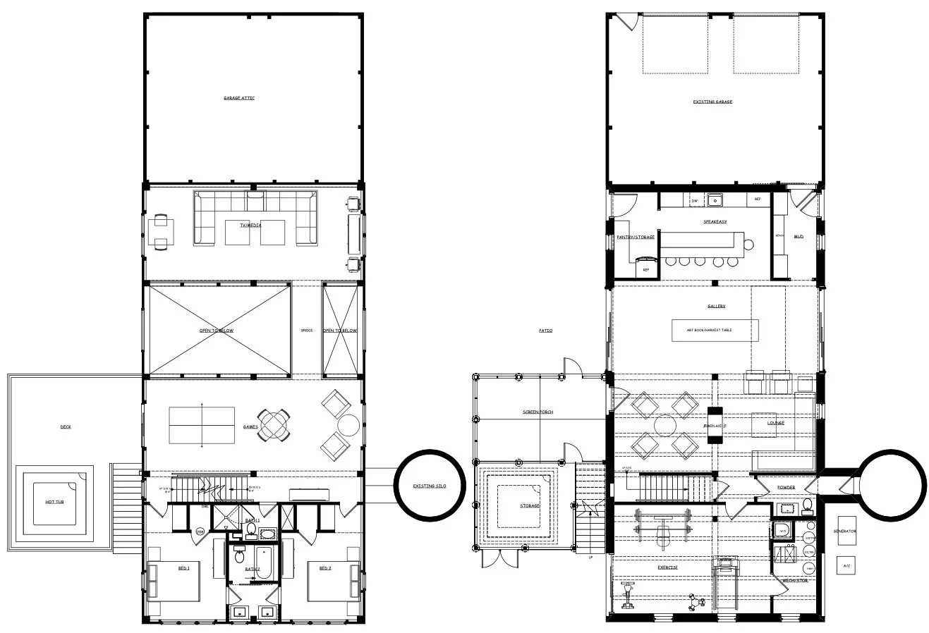
Harris Barn, Weesaw Township, MI

The old barn was falling apart, so we helped the owners save its character while relating it to the design of the main house (see Harris Farm). It will be a versatile space for family dinners, teen hangouts, workouts, art, and guests—all while keeping the barn’s original feel with modern upgrades.

Construction: Started Fall 2023/ Completion Summer 2025

Previous
Previous

Think Tank Addition, Lakeside, MI

Next
Next

Harbor Country Cottages