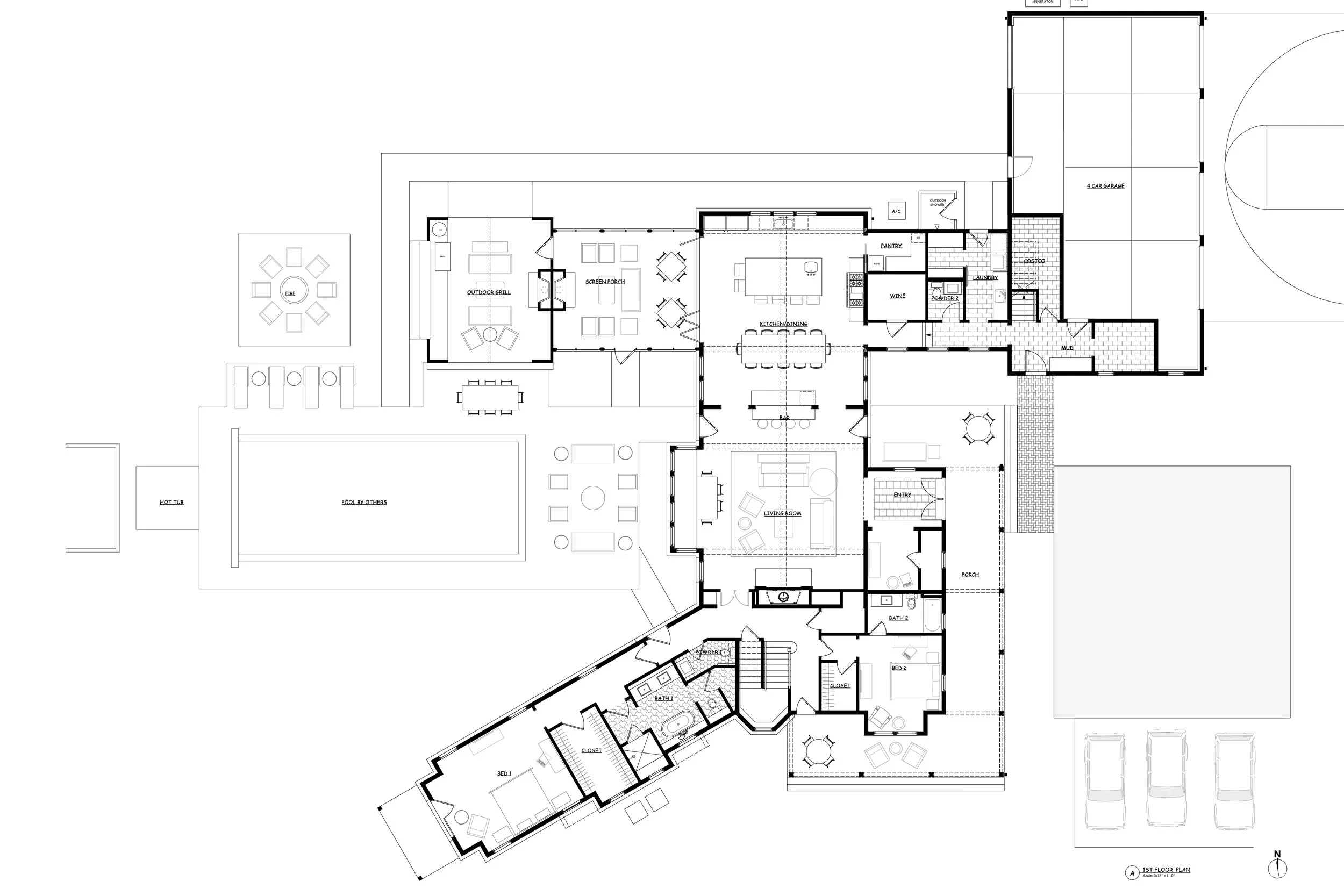
Meadowood, Lakeside, MI

A young family from Chicago wanted a place to escape the city and a place to host family and friends. Separate areas are dedicated for the family and guests while also allowing for group gatherings and isolated quiet and noisy activities. The home’s design reaches out into the landscape, embracing a private rear courtyard. The approach to the home does not give everything away all at once. It will need to be discovered. This will be the first home built in this new development.

Project Year: 2023 Contractor: Kono Incorporated

Next
Next

Victory Ranch, Utah